
DMC型脈沖式倉頂除塵器適宜布置在各種粉料貯存庫的頂部,用于過濾含塵氣體。
主要技術說明及參數
DMC型脈沖式倉頂除塵器主要技術參數見下表,在選型時應注意入口粉塵濃度,在技術性能上,透過濾袋的氣流速度(即過濾風速)與氣體含塵濃度成反比,因此,在確定過濾面積時,還須滿足濾袋的聚塵能力(即兩次清灰期間濾袋單位面積上大允許積塵數量),一般聚塵能力不大于400克/m2,可按下式計算:聚塵能力=入口氣體含塵濃度x過濾風速x兩次清灰間隔時間,計算結果如超過聚塵能力,應調整過濾風速,增加過濾面積。
技術參數
|
技術參數型號
|
DMC-12
|
DMC-24
|
DMC-36
|
DMC-48
|
DMC-60
|
DMC-72
|
DMC-84
|
DMC-96
|
DMC-108
|
DMC-120
|
|
過濾面積(m2)
|
9
|
18
|
27
|
36
|
45
|
54
|
63
|
72
|
81
|
90
|
|
濾袋數量
|
12
|
24
|
36
|
48
|
60
|
72
|
84
|
96
|
108
|
120
|
|
濾袋規格
|
Φ120x2000
|
|||||||||
|
工作溫度(℃)
|
<120
|
|||||||||
|
設備壓力(Pa)
|
1000-1500
|
|||||||||
|
除塵效率
|
99%
|
|||||||||
|
入口含塵濃度
|
<15(g/m3)
|
|||||||||
|
過濾風速m/min
|
0.5-4
|
|||||||||
|
處理風量m3/h
|
270-2150
|
540-4300
|
810-6480
|
1080-8640
|
1350-108000
|
1620-12900
|
1890-15100
|
2160-17200
|
2430-17200
|
2700-21600
|
|
噴吹氣壓(MPa)
|
0.5-0.7
|
|||||||||
|
脈沖電磁閥(個)
|
2
|
4
|
6
|
8
|
10
|
12
|
14
|
16
|
18
|
20
|
|
脈沖寬度(m)
|
0.1-0.2
|
|||||||||
|
脈沖周期(s)
|
60-120
|
|||||||||
|
脈沖間隔(s)
|
1-50
|
|||||||||
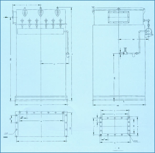
外形尺寸
外形尺寸圖

蘇公網安備 32020602000269號